Ref. ESFP60015

Portería reglamentaria FIJA de fútbol 7 + red

PORTERÍA DE FUTBOL FP600105

La portería de futbol diseñada y fabricada para el entrenamiento de fútbol 7, es una portería de 6 x 2 metros. Tiene mucha estabilidad ya que está construido de acero reforzado de 80 mm, es una portería de futbol fuerte y segura. Es una portería de futbol para enterrar, es decir, que queda fija en el terreno de juego.

La portería de futbol para el entrenamiento de fútbol 7, se compone de varias partes:

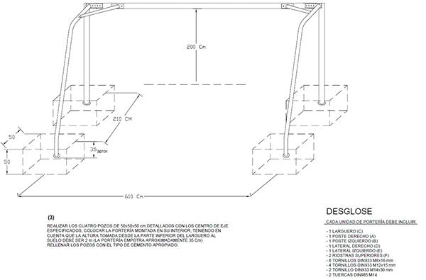
El Marco de la portería se divide en tres partes, estas piezas están construidas en perfil de acero de 80mm de diámetro. En este marco se integra el sistema de fijación para los elementos laterales y los cilindros-guía para asegurar que la red quede sujeta.  La distancia aproximada a empotrar en el pavimento es de 35 cm.
Para sujetar la red, es necesario pasar la cuerda en zigzag por los cilindros metálicos (que están soldados al marco), estos cilindros están diseñados para evitar problemas de accidente.

La estabilidad de la portería de futbol  es importante y depende de la base que tenga, esta portería de futbol  sus laterales están fabricados de tubo redondo de 50 mm de diámetro y con una profundidad de 200cm como base para la estabilidad de la portería de futbol. Cada lateral está unido por la parte inferior, es una riostra longitudinal fabricada en tubo de acero de 50x25mm.

La red que se ofrece para esta portería de futbol, está hecha de hilo de nylon de 3,5mm de diámetro, dejando una malla al cuadro de 120x120mm, evitando cualquier nudo. (La red no viene incluida en la portería de futbol).

El acabado de esta portería de futbol es de desengrase por fosfatación cristalina y acabado termolacado, es decir, esmaltado al horno y en epoxi-poliéster.  (ASTM 11.757/ DIN 50015)

Medidas
600 x 200 x 200 (altura) cms.

Advertencia: Edad recomendada a partir de 3 años
870,00
Advertencia: Edad recomendada a partir de 3 años
El tiempo de entrega es de 7 a 15 días
Necesita ayuda telefónica? Llame al 902 106 630 o al 637 476 844. Horario de atención al cliente de 09h a 19:30h de lunes a viernes y los sábados de 10:00h a 14:00h. (En agosto los sábados cerrados)